Excelente sobrado localizado em um dos condomínios mais procurados de indaiatuba, que possui uma enorme área verde, com trilhas e acesso à uma lagoa. Também com excelente estrutura e a poucos minutos do centro, principais bairros e o parque ecológico.
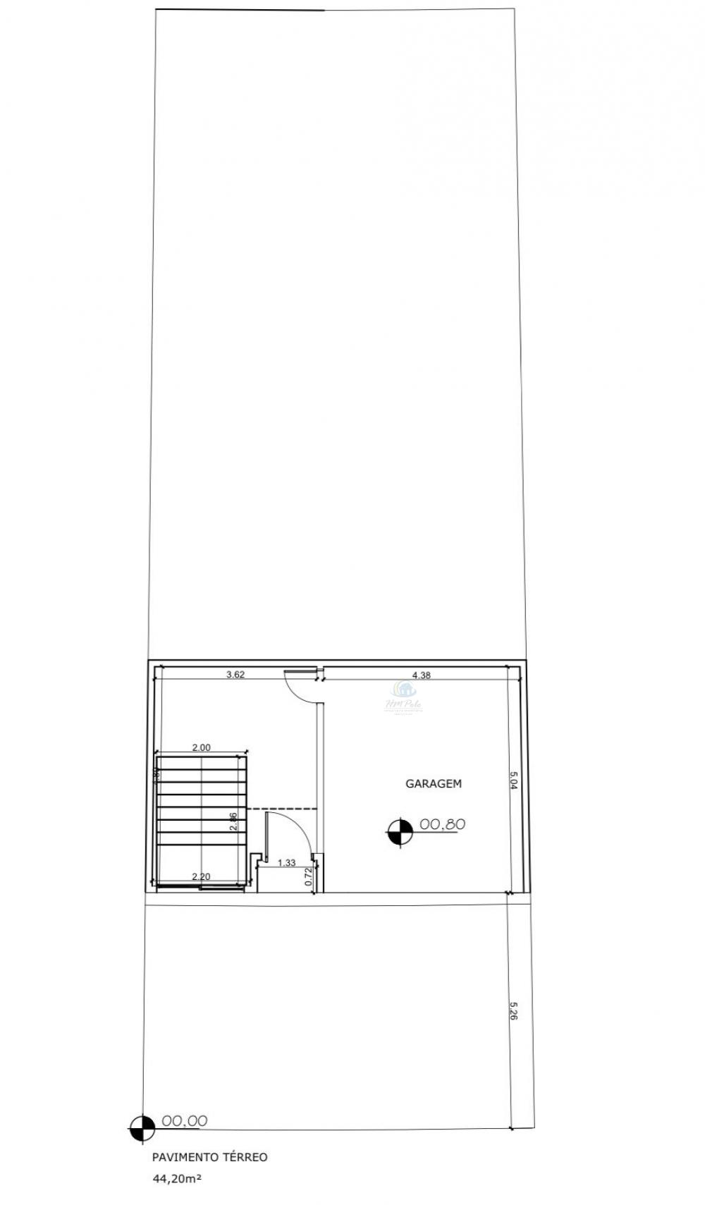
O imóvel tem uma planta super funcional e prática sem perder a beleza em sua estrutura e com acabamento de alto padrão, sendo distribuída em:03 suítes no piso superior, todas com ar condicionado instalado, sacada (sendo duas com a vista totalmente livre para a entrada da área verde), uma suíte máster com closet e bancada para escritório, Banheiros com planejados, espelho, box blindex, sala ampla com dois ambientes com excelente iluminação e painel com led, um espaço que pode ser revertido em escritório (atualmente é uma brinquedoteca); lavabo no piso inferior, Cozinha americana riquíssima em planejados (com luz de led), cooktop de indução, forno elétrico, despensa com amplo espaço e prateleiras, área de serviço muito funcional com planejados, área externa com cobertura possibilitando um espaço para depósito, entrada de acesso lateral,
área gourmet aconchegante com acomodação, rede, planejados, churrasqueira e cobertura retrátil, quintal gramado preparado para receber piscina ou spa, garagem para dois carros sendo uma vaga coberta, possui 12 placas de energia fotovoltaica proporcionando uma incrível economia na conta da energia elétrica,
possui água quente nas torneiras e chuveiros, com boiler de aquecimento solar,
a localização desse imóvel dentro do condomínio é perfeita, ao lado do espaço zen e na principal via de acesso à piscina e academia, e ainda conta com uma extensa área de lazer no condomínio: piscina adulto e infantil, academia equipada, salão de festas, salão de jogos, espaço pet, espaço zen, playground, espaços de convivência, trilhas para caminhada em meio ao verde proporcionando momentos relaxantes de exercícios ou apenas para apreciar a natureza, segurança 24 h: portaria e ronda.
Desde 1987, a HMPOLO Consultoria Imobiliária proporciona aos seus clientes excelência na venda, locação e administração de imóveis em Campinas e região.
Com assessoria jurídica própria, equipe credenciada e especializada no mercado imobiliário, prezamos pela excelência no atendimento, segurança jurídica, transparência e ética profissional, investindo continuamente na melhoria dos processos e capacitação dos colaboradores, visando a total satisfação dos nossos clientes.
Consulte-nos!
HMPOLO - CONECTANDO VOCÊ COM BOAS OPORTUNIDADES